Dự án cải tạo chung cư cũ tại khu vực Phú Nhuận được thực hiện cho anh Huy là một phần trong chuỗi giải pháp trọng điểm của Zenhomes tại TP.HCM. Với hiện trạng là một căn hộ cũ nằm trong khu dân cư lâu đời, mục tiêu trọng tâm lần này không chỉ dừng lại ở thẩm mỹ mà còn là nâng cấp chất lượng sống.
Tổng quan dự án cải tạo chung cư Nhiêu Tứ
Dù căn hộ có diện tích vừa phải nhưng tình trạng cũ kỹ đã khiến không gian trở nên chật chội. Hiểu được nhu cầu của gia đình anh Huy về một nơi ở thông thoáng và tiện nghi hơn, Zenhomes đã triển khai phương án cải tạo tổng thể, tập trung vào việc xử lý các lỗi hệ thống và tái cấu trúc nội thất theo phong cách hiện đại, tối giản nhưng vẫn đầy đủ công năng.
Hiện trạng căn hộ trước khi cải tạo: Sự xuống cấp theo thời gian
Trước khi bắt tay vào thiết kế thi công nội thất chung cư, đội ngũ kỹ sư Zenhomes đã tiến hành khảo sát kỹ lưỡng và ghi nhận thực trạng hư hại nghiêm trọng:
Không gian cũ kỹ
Sau thời gian dài sử dụng, nhiều hạng mục trong căn hộ đã xuất hiện dấu hiệu thời gian. Tường bị ố màu, bong tróc, nội thất cũ kỹ và không còn phù hợp với nhu cầu hiện tại của gia đình.
Bố trí thiếu hợp lý
Không gian các phòng chưa được phân chia khoa học, gây lãng phí diện tích. Khu vực bếp và phòng khách thiếu tính liên kết, tạo ra nhiều bất tiện đáng kể trong sinh hoạt hàng ngày của gia đình.
Hệ thống điện nước cũ
Hệ thống đường dây điện và ống nước không còn đảm bảo an toàn, hiệu quả sử dụng kém. Đây là yếu tố cốt lõi cần được xử lý triệt để khi thực hiện quy trình cải tạo chung cư cũ tại Zenhomes.
Thiếu ánh sáng và thông thoáng
Căn hộ thiếu nguồn sáng tự nhiên trầm trọng, khiến tổng thể không gian trở nên bí bách. Điều này ảnh hưởng trực tiếp đến sức khỏe tinh thần và trải nghiệm sống đẳng cấp của anh Huy có gu thẩm mỹ.
Giải pháp thiết kế và cải tạo tổng thể
Để giải quyết triệt để những bất cập về diện tích và sự xuống cấp, Zenhomes đã đưa ra phương án cải tạo chung cư cũ với lộ trình bài bản, tập trung vào việc “phá bỏ giới hạn” của cấu trúc nguyên bản:
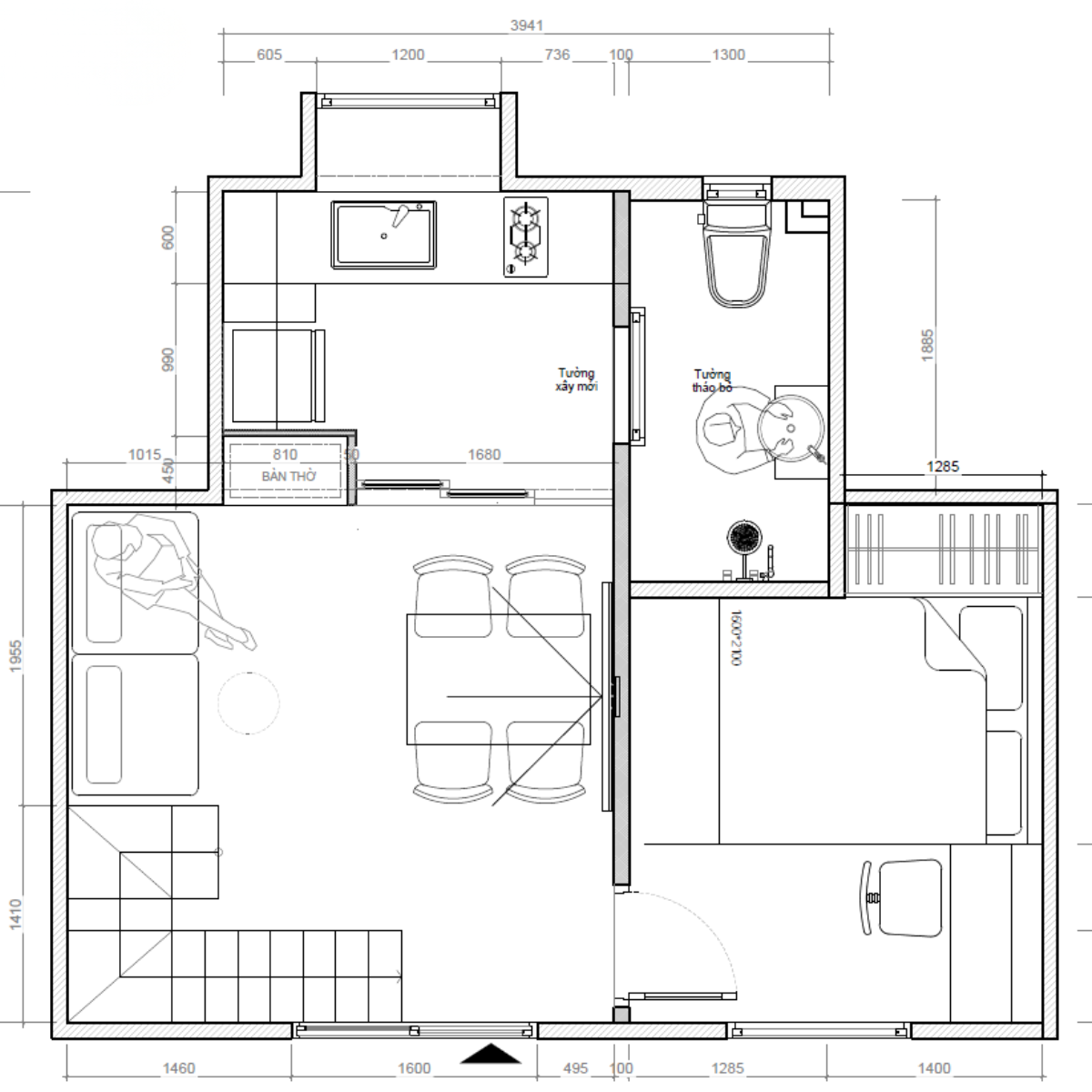
Tối ưu mặt bằng công năng khi cải tạo chung cư cũ
-
Tái cấu trúc tường ngăn & Mở rộng vệ sinh:
Chúng tôi tiến hành phá dỡ các bức tường ngăn không cần thiết để tạo ra sự kết nối liền mạch giữa phòng khách và bếp. Đặc biệt, khu vực nhà vệ sinh được tính toán cải tạo lại tường, mở rộng diện tích sử dụng để tích hợp đầy đủ các thiết bị hiện đại, mang lại sự tiện nghi tối đa cho gia đình anh Huy.
-
Hệ vách kính di động thông minh:
Điểm nhấn đột phá trong dự án cải tạo chung cư cũ là việc thay thế các mảng tường gạch bí bách bằng hệ vách kính di động. Giải pháp cải tạo chung cư cũ này cho phép gia chủ linh hoạt đóng – mở không gian, giúp căn hộ đón trọn ánh sáng tự nhiên và thông thoáng hơn đáng kể.
-
Tối ưu hóa diện tích sàn:
Việc bố trí lại các phòng chức năng dựa trên thói quen sinh hoạt thực tế giúp diện tích sử dụng được mở rộng tối đa. Các hệ tủ âm trần được tích hợp khéo léo để giải phóng không gian sàn, giúp tổng thể căn hộ trở nên rộng rãi.
Giải pháp tối ưu ánh sáng tự nhiên và chiếu sáng mềm
Trong các dự án cải tạo chung cư cũ, giải pháp thiết kế thường tập trung tận dụng tối đa nguồn ánh sáng tự nhiên thông qua hệ cửa kính và bố trí không gian mở. Sự kết hợp hài hòa này mang lại cảm giác ấm cúng, dễ chịu cho Khách Hàng trong quá trình sinh hoạt hàng ngày.
Bên cạnh đó, hệ thống chiếu sáng mềm được tích hợp bằng đèn âm trần giúp ánh sáng lan tỏa đều, hạn chế chói mắt. Đặc biệt, hệ thống đèn được lựa chọn có chỉ số hoàn màu (CRI) cao giúp tái hiện màu sắc nội thất trung thực nhất.
Giải pháp nội thất thông minh tối ưu không gian sống
Trong cải tạo chung cư cũ diện tích vừa và nhỏ, việc sử dụng nội thất thông minh là giải pháp thi công hiệu quả để tối ưu không gian. Bàn ăn xếp gọn giúp linh hoạt trong quá trình sử dụng, dễ dàng mở rộng khi cần và thu gọn khi không dùng đến. Sự kết hợp giữa các giải pháp cải tạo chung cư cũ mang lại trải nghiệm sống tiện nghi, phù hợp với nhu cầu thực tế của gia đình.
Sự đồng bộ vật liệu: Chìa khóa của không gian hiện đại
Việc đồng bộ vật liệu và màu sắc là chìa khóa giúp không gian cải tạo chung cư cũ trở nên hài hòa và liền mạch hơn. Zenhomes ưu tiên sử dụng các gam màu trung tính kết hợp cùng vật liệu hiện đại như gỗ công nghiệp chống ẩm, đá nhân tạo và kính cường lực. Điểm nhấn là việc ứng dụng chất liệu Acrylic bóng gương tại hệ tủ bếp giúp tận dụng tối đa độ bắt sáng.
Bên cạnh yếu tố thẩm mỹ, tính an toàn cũng được Zenhomes chú trọng. Tại các khu vực thường xuyên tiếp xúc với nước như sàn nhà hay tường phòng tắm, các loại gạch có bề mặt nhám nhẹ được ưu tiên để chống trơn trượt.
Thiết kế nội thất với đường nét tinh gọn và dứt khoát
Bằng việc áp dụng ngôn ngữ hiện đại, không gian nội thất sau khi cải tạo chung cư cũ được tiết chế với các đường nét tinh gọn. Điểm sáng của dự án là việc ứng dụng hệ tủ âm tường kịch trần kết hợp bàn học được bố trí liền mạch. Sàn gỗ xương cá được lựa chọn để tạo nên hiệu ứng thị giác sang trọng và kéo dài không gian một cách tự nhiên.
Không gian phòng ngủ cá nhân hóa theo trải nghiệm và cảm xúc
Thay vì chỉ tập trung vào từng khu vực riêng lẻ, giải pháp cải tạo chung cư cũ Phú Nhuận hướng đến việc “chữa lành” tâm trí và tái cấu trúc trải nghiệm sống. Zenhomes không chỉ hồi sinh nội thất bằng nghệ thuật phối màu Modern Luxury mà còn tạo ra một mạch cảm xúc liền mạch.
Khoa học đã chứng minh, một không gian được tinh gọn, lược bỏ các chi tiết rườm rà sẽ giúp giảm đáng kể nồng độ Cortisol (hormone gây căng thẳng), tạo ra sự thư giãn cho hệ thần kinh.
Tối ưu tiện nghi với thiết bị và phụ kiện hiện đại
Việc nâng cấp trải nghiệm sống thông qua các thiết bị hiện đại là ưu tiên hàng đầu. Trong các dự án cải tạo chung cư cũ, Zenhomes lựa chọn hệ thống thiết bị thông minh và phụ kiện tiện ích để mang lại sự thuận tiện trong sinh hoạt hàng ngày.
Tiêu biểu là khu vực giặt sấy được thiết kế tối ưu với máy giặt sấy xếp chồng giúp tiết kiệm diện tích. Hệ tủ lưu trữ được tính toán bố trí khoa học, giúp việc sắp xếp đồ dùng trở nên gọn gàng.
So Sánh Đặc Thù Cải Tạo: Nhà Phố & Chung Cư
Cải Tạo Chung Cư Cũ
- ● Pháp lý: Bắt buộc xin phép Ban Quản Lý, ký quỹ thi công và tuân thủ quy định tòa nhà.
- ● Kết cấu: Tuyệt đối không can thiệp dầm, cột chịu lực và mặt đứng chung của dự án.
- ● Kỹ thuật: Phụ thuộc hộp gen kỹ thuật chung; khó thay đổi vị trí bếp, WC để tránh thấm dột tầng dưới.
- ● Thi công: Giới hạn giờ giấc khắt khe, vận chuyển vật tư xà bần qua thang máy chuyên dụng.
- ● Giải pháp: Ưu tiên phá tường ngăn lấy sáng, dùng vách kính và nội thất đa năng để tối ưu diện tích cố định.
- ● Tiện ích: Tận dụng hạ tầng có sẵn; tập trung vào thẩm mỹ nội thất và nâng cấp thiết bị thông minh.
“Nghệ thuật tối ưu không gian sống hiện đại”
Cải Tạo Nhà Phố
- ● Pháp lý: Tự chủ cao, xin phép xây dựng tại Quận/Huyện nếu thay đổi kết cấu chính hoặc nâng tầng.
- ● Kết cấu: Linh hoạt thay đổi, có thể nâng thêm tầng, đúc thêm sàn hoặc mở rộng quy mô xây dựng.
- ● Kỹ thuật: Chủ động hệ thống hố ga, bể phốt và trục điện nước riêng biệt theo nhu cầu gia đình.
- ● Thi công: Tự do về thời gian và phương thức vận chuyển; ít bị giới hạn bởi không gian chung.
- ● Giải pháp: Tập trung vào thông tầng, giếng trời và thay đổi mặt tiền kiến trúc để lấy sáng tự nhiên.
- ● Tiện ích: Phải tự đầu tư và duy trì hệ thống an ninh, sân vườn, hồ bơi (nếu có) từ đầu.
“Khẳng định cá tính qua kiến trúc riêng biệt”
Thi công thực tế và quá trình triển khai chuyên nghiệp tại Zenhomes
Quy trình thiết kế nội thất và thi công thực tế tại dự án Phú Nhuận được thực hiện một cách bài bản. Zenhomes luôn chú trọng khâu giám sát hiện trường để đảm bảo các yếu tố kỹ thuật được thực hiện đúng bản vẽ thiết kế và đúng tiến độ cam kết. Với ưu thế sở hữu xưởng sản xuất, Zenhomes cam kết quy trình cải tạo chung cư cũ được kiểm soát chặt chẽ từ khâu gia công đến lắp đặt thực tế.
Khảo sát và báo giá
Đội ngũ kỹ thuật trực tiếp đến đo đạc hiện trạng, đánh giá mức độ hư hỏng và đề xuất phương án cải tạo chung cư cũ lựa chọn vật liệu tối ưu phù hợp với ngân sách.
Thiết kế 3D
Kiến trúc sư triển khai bản vẽ mặt bằng 2D và phối cảnh 3D mô phỏng thực tế sau khi cải tạo chung cư cũ, giúp dễ dàng hình dung tổng thể không gian.
Thi công hoàn thiện
Triển khai từ phần thô đến lắp đặt điện nước. Sản phẩm nội thất được gia công tại xưởng và lắp đặt bởi đội ngũ thợ lành nghề.
Bàn giao & Bảo hành
Zenhomes bàn giao không gian hoàn thiện kèm chính sách bảo hành rõ ràng, đồng hành cùng khách hàng trong suốt quá trình sử dụng.
Vì sao Khách Hàng chọn Zenhomes?
Sự tin tưởng của anh Huy dành cho Zenhomes là kết quả của một hành trình làm việc minh bạch:
🏗️
Kinh nghiệm thực chiến
Với hàng trăm dự án tại TP.HCM, chúng tôi am hiểu tường tận cấu trúc cải tạo chung cư cũ để xử lý dứt điểm các lỗi kỹ thuật khó nhằn nhất.
📜
Sự minh bạch tuyệt đối
Là đối tác chiến lược của An Cường, Hafele… giúp Quý Khách hoàn toàn yên tâm về nguồn gốc và độ bền của nội thất.
🏭
Kiểm soát chất lượng tại gốc
Nhờ sở hữu xưởng sản xuất riêng, mỗi sản phẩm đều được kiểm định khắt khe, đảm bảo sự tinh xảo và tối ưu chi phí cải tạo.
Xem thêm các dự án nổi bật
Mỗi công trình là một bài toán riêng biệt được Zenhomes giải mã bằng sự tận tâm và quy trình thực thi minh bạch.
Giải pháp không gian sống trọn gói
Chúng tôi đồng hành cùng bạn từ ý tưởng sơ khai đến khi chìa khóa trao tay, mang lại sự tiện nghi và thẩm mỹ bền vững.
XEM HỒ SƠ NĂNG LỰCThiết kế Nội thất
Sáng tạo không gian độc bản, tối ưu công năng và phản ánh đúng cá tính riêng của chủ nhân.
Thi công Trọn gói
Quy trình chuyên nghiệp, đảm bảo thực tế thi công giống bản vẽ 3D đến 95% và đúng tiến độ cam kết.
Sản xuất & Cung cấp
Hệ thống xưởng hiện đại cung cấp sản phẩm nội thất tinh tế, chất lượng cao với giá thành trực tiếp từ xưởng.
HOÀN PHÍ THIẾT KẾ 100%
Đầu tư thông minh cho không gian độc bản
- Áp dụng cho khách hàng thi công trọn gói
- Nhận đặc quyền tư vấn chuyên sâu
- Đón đầu xu hướng nội thất bền vững và sang trọng.
