Trong bối cảnh quỹ đất nội đô ngày càng hạn hẹp, việc sở hữu một căn hộ và tìm kiếm đơn vị sửa chữa chung cư trọn gói uy tín để hiện thực hóa ý tưởng không gian sống là ưu tiên hàng đầu của nhiều gia đình. Không chỉ dừng lại ở việc sắp xếp đồ đạc, quá trình nâng cấp đòi hỏi sự thấu hiểu về kiến trúc và phong thủy để tạo nên sự kết nối giữa các thế hệ.
Đặc biệt với những gia chủ mong muốn thay đổi diện tích từ 3 phòng ngủ thành 2 phòng ngủ để ưu tiên không gian sinh hoạt chung, sự can thiệp chuyên môn là vô cùng cần thiết. Hãy cùng Zenhomes tìm hiểu giải pháp đột phá cho căn hộ Lovera Vista ngay sau đây.
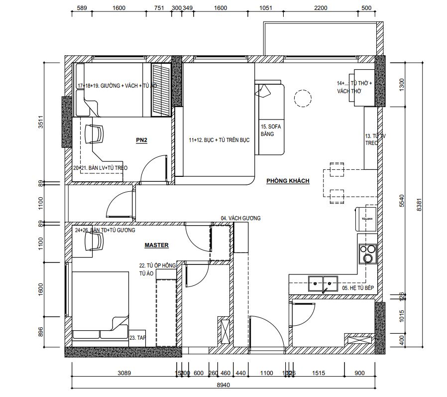
Tổng quan dự án sửa chữa chung cư trọn gói Lovera Vista
Dự án công trình cải tạo căn hộ tại Bình Chánh, TP.HCM lần này được Zenhomes triển khai dựa trên tâm huyết của chủ đầu tư – chị Nhã. Với vị trí đắc địa tại khu Nam Sài Gòn, căn hộ đã hoàn thành và bàn giao vào cuối năm 2025. Đội ngũ Zenhomes đã tiếp cận dự án theo phong cách hiện đại, tập trung vào hạng mục tư vấn thiết kế nội thất nhằm khai thác từng mét vuông diện tích. Mục tiêu cốt lõi là biến căn hộ cũ thành một tổ ấm ấm cúng, nơi mỗi góc nhỏ đều phản ánh phong cách sống thanh lịch và tinh tế của Khách Hàng.
Đánh giá hiện trạng căn hộ Lovera Vista trước khi sửa chữa chung cư trọn gói
Hạn chế về thẩm mỹ
Hiện trạng căn hộ cũ của chủ đầu tư bộc lộ rõ sự đơn điệu. Các mảng tường và sàn thô làm không gian trở nên lạnh lẽo, chưa thể hiện được cá tính riêng của gia chủ.
Bố trí chưa tối ưu
Cấu trúc 3 phòng ngủ nguyên bản vô tình tạo ra nhiều vách ngăn chia cắt, làm giảm diện tích dành cho khu vực tương tác chung của gia đình.
Kỹ thuật nguyên bản
Các đầu chờ điện nước sẵn có thường không trùng khớp với sơ đồ bố trí nội thất mới, đòi hỏi quy trình thiết kế bài bản để đảm bảo an toàn lâu dài.
Thiếu sự thông thoáng
Việc chia quá nhiều phòng chức năng khiến ánh sáng tự nhiên khó len lỏi vào khu vực bếp và hành lang, gây ra sự bí bách cho môi trường sống.
Giải pháp thiết kế và sửa chữa chung cư trọn gói
Tinh chỉnh mặt bằng công năng
Việc lược bỏ bớt một phòng ngủ không đơn thuần là phá dỡ vách ngăn, mà là một cuộc “cải cách” về lưu thông không khí và ánh sáng cho toàn bộ căn hộ. Đây là giải pháp then chốt trong quy trình sửa chữa chung cư trọn gói giúp mở rộng tầm nhìn từ khu vực bếp xuyên suốt đến phòng khách. Đây cũng là tiền đề quan trọng để Khách Hàng áp dụng các phong cách nội thất thanh lịch như hiện đại hay Japandi.
Bên cạnh đó, khu vực nghỉ ngơi của ông bà được Zenhomes tính toán tỉ mỉ để đảm bảo sự riêng tư cần thiết. Từng mét vuông diện tích sau khi tái cấu trúc đều được khai thác triệt để, giúp căn hộ trở nên tiện nghi hơn hẳn.
Hơi thở Japandi trong không gian sống hiện đại
Để căn hộ mang vẻ đẹp bình yên, Zenhomes đã khéo léo kết hợp tinh thần Japandi vào quy trình sửa chữa chung cư trọn gói, tạo nên sự giao thoa tinh tế giữa nét tối giản Nhật Bản và truyền thống Việt Nam. Giải pháp thi công này sử dụng bảng màu trung tính nhẹ nhàng như trắng, kem và màu gỗ nhạt, mang lại cảm giác thư thái cho Khách Hàng sau những giờ làm việc mệt mỏi. Không gian trở thành một thực thể sống động, đề cao sự gọn gàng nhưng vẫn tràn đầy hơi ấm tự nhiên.
Nâng cấp hệ thống kỹ thuật chuyên sâu
Zenhomes tiến hành đi lại toàn bộ hệ thống điện nước và chiếu sáng – hạng mục kỹ thuật cốt lõi khi thực hiện dự án sửa chữa chung cư trọn gói nhằm phù hợp với kịch bản sinh hoạt mới. Việc lắp đặt thiết bị vệ sinh cao cấp, tích hợp phụ kiện tủ bếp thông minh giúp nâng cao trải nghiệm sử dụng hàng ngày cho Khách Hàng.
Lựa chọn vật liệu phù hợp và bền bỉ
Trong dự án sửa chữa chung cư trọn gói này, Zenhomes ưu tiên gỗ công nghiệp chống ẩm An Cường và gỗ sồi tự nhiên nhập khẩu. Nếu gỗ công nghiệp mang lại vẻ đẹp hiện đại cho các hệ tủ lớn, thì gỗ sồi lại tạo điểm nhấn ấm cúng, phù hợp với văn hóa gia đình Việt. Đặc tính kháng ẩm giúp nội thất duy trì độ bền cao, khẳng định sự am hiểu sâu sắc của Zenhomes về tính thực tế trong kiến trúc.
Giữ lại nét truyền thống
Zenhomes khéo léo đan cài các vật liệu vân gỗ cùng chi tiết cánh tủ đan mây tinh tế. Điểm nhấn là bàn thờ gia tiên được bố trí trang nghiêm tại phòng khách hướng ra cửa sổ lớn, giúp đón sinh khí và cân bằng phong thủy, mang lại sự an yên cho Khách Hàng trong cuộc sống thường nhật.
An toàn cho người cao tuổi
Khi thực hiện gói sửa chữa chung cư trọn gói cho gia đình nhiều thế hệ, chúng tôi đặc biệt thiết kế bo cong các góc cạnh nội thất nhằm hạn chế tối đa va chạm. Ngoài ra, Zenhomes cũng ưu tiên chất liệu vải cotton mềm mịn kết hợp cùng hệ thống ray giảm chấn cao cấp giúp triệt tiêu tiếng ồn, đảm bảo sự yên tĩnh tuyệt đối cho giấc ngủ của Khách Hàng lớn tuổi.
Tiết kiệm ngân sách
Trong gói sửa chữa chung cư trọn gói, Zenhomes luôn tận dụng những món đồ cũ còn giá trị sử dụng của ông bà. Việc phối hợp vật dụng thân thuộc với nội thất mới không chỉ giúp giảm chi phí đầu tư đáng kể mà còn đảm bảo tính nhất quán về phong cách và cảm xúc cho tổ ấm.
So Sánh Chất Lượng Sửa Chữa Chung Cư Trọn Gói
Zenhomes (Tiêu Chuẩn)
- ● Cốt gỗ nội thất: MDF An Cường, đạt chuẩn E1 an toàn sức khỏe.
- ● Bề mặt hoàn thiện: Melamine/Acrylic chính hãng, chống trầy xước, bền màu trên 10 năm.
- ● Phụ kiện đi kèm: Hafele/Ivan giảm chấn, đóng mở êm ái, chống rỉ sét.
- ● Đá mặt bếp: Đá nhân tạo/Vicostone chống thấm, chống ố vàng.
- ● Sơn tường: Dulux/Jotun chính hãng, độ che phủ cao, dễ lau chùi.
- ● Kỹ thuật điện nước: Đi ống PVC cứng, dây điện Cadivi bọc ruột gà an toàn 100%.
- ● Xử lý chống thấm: Quy trình 3 lớp Sika/Kova chuyên dụng, bảo hành 1 năm.
- ● Độ tinh xảo: Khe hở cánh tủ < 3mm, góc cạnh bo cong, keo Silicon thẳng tắp.
- ● Vệ sinh bàn giao: Vệ sinh công nghiệp 5S, khách chỉ cần xách vali vào ở.
- ● Bảo hành & Bảo trì: Bảo hành 24 tháng, bảo trì định kỳ trọn đời.
“Chất lượng khẳng định đẳng cấp”
Đơn Vị Phổ Thông / Giá Rẻ
- ● Cốt gỗ nội thất: Gỗ tạp, không thương hiệu, nồng độ Formaldehyde cao
- ● Bề mặt hoàn thiện: Sơn tay thô sơ hoặc phủ Decal mỏng, dễ bong tróc sau 1-2 năm.
- ● Phụ kiện đi kèm: Phụ kiện sắt thông thường, dễ kẹt và gây ồn.
- ● Đá mặt bếp: Đá tự nhiên giá rẻ, dễ nứt và thấm màu thực phẩm.
- ● Sơn tường: Sơn không rõ nguồn gốc, dễ để lại dấu tay và bị bay màu.
- ● Kỹ thuật điện nước: Đi dây trần hoặc dùng ống mỏng kém chất lượng, dễ cháy nổ.
- ● Xử lý chống thấm: Quét xi măng thô sơ, dễ bị thấm ngược sau vài mùa mưa.
- ● Độ tinh xảo: Hoàn thiện thô, khe hở không đều, đường keo lem nhem.
- ● Vệ sinh bàn giao: Dọn dẹp sơ bộ, gia chủ tốn thêm chi phí thuê đội vệ sinh ngoài.
- ● Bảo hành & Bảo trì: Bảo hành ngắn (6-12 tháng), khó gọi thợ khi gặp sự cố.
“Cẩn trọng với những lời hứa giá rẻ”
Quá trình thực tế sửa chữa chung cư trọn gói Lovera Vista
Quy trình thi công được giám sát chặt chẽ từ sản xuất tại xưởng đến lắp đặt hiện trường. Zenhomes cam kết tiến độ đúng kế hoạch, kiểm soát chất lượng qua từng giai đoạn để kết quả bàn giao đạt độ chính xác cao nhất so với bản vẽ thiết kế, mang đến sự hài lòng tuyệt đối cho Khách Hàng.
Khảo sát và báo giá
Đo đạc thực tế hiện trạng, lắng nghe mong muốn của Khách Hàng để lập bảng dự toán chi tiết, minh bạch.
Thiết kế
Kiến trúc sư thể hiện bản vẽ 3D và hồ sơ kỹ thuật thi công, khai thác triệt để mọi công năng sử dụng.
Thi công
Giai đoạn thi công trong quy trình sửa chữa chung cư trọn gói được thực hiện bởi đội ngũ thợ lành nghề
Bàn giao và Bảo hành
Zenhomes bàn giao công trình hoàn thiện kèm chính sách bảo trì, bảo hành dài hạn cho Khách Hàng.
Vì sao Khách Hàng tin chọn Zenhomes?
Chị Nhã là Khách Hàng thân tín của Zenhomes hơn 10 năm quá bởi vì :
🏆
Kinh nghiệm thực chiến phong phú
Với hàng trăm công trình thực tế, Zenhomes là đơn vị sửa chữa chung cư trọn gói uy tín, được các chủ đầu tư lớn tin cậy.
✨
Sự minh bạch và tận tâm
Mọi quy trình báo giá và bản vẽ đều rõ ràng. Chúng tôi chỉ sử dụng vật liệu cao cấp từ An Cường, Hafele để đảm bảo đẳng cấp không gian.
🛡️
Kiểm soát chất lượng nghiêm ngặt
Hệ thống xưởng riêng giúp Zenhomes chủ động về chất lượng và giá thành, đi kèm chế độ bảo trì định kỳ chu đáo cho Khách Hàng.
Một số hình ảnh khác của dự án sửa chữa chung cư trọn gói Lovera Vista
Xem thêm các dự án nổi bật
Mỗi công trình là một bài toán riêng biệt được Zenhomes giải mã bằng sự tận tâm và quy trình thực thi minh bạch.
Giải pháp không gian sống trọn gói
Chúng tôi đồng hành cùng bạn từ ý tưởng sơ khai đến khi chìa khóa trao tay, mang lại sự tiện nghi và thẩm mỹ bền vững.
XEM HỒ SƠ NĂNG LỰCThiết kế Nội thất
Sáng tạo không gian độc bản, tối ưu công năng và phản ánh đúng cá tính riêng của chủ nhân.
Thi công Trọn gói
Quy trình chuyên nghiệp, đảm bảo thực tế thi công giống bản vẽ 3D đến 95% và đúng tiến độ cam kết.
Sản xuất & Cung cấp
Hệ thống xưởng hiện đại cung cấp sản phẩm nội thất tinh tế, chất lượng cao với giá thành trực tiếp từ xưởng.
HOÀN PHÍ THIẾT KẾ 100%
Đầu tư thông minh cho không gian độc bản
- Áp dụng cho khách hàng thi công trọn gói
- Nhận đặc quyền tư vấn chuyên sâu
- Đón đầu xu hướng nội thất bền vững và sang trọng.
